За проекта
Сграда Lion Hill се намира в гр. София, кв. Левски Г, ул. Могилите №7.
Проектът е разделен на два етапа, като двете сгради са предвидени да бъдат построени „на калкан“ една до друга.
Изграждането на сграда Lion Hill етап 1 стартира през лятото на 2024г., акт 14 е предвиден за втората половина на 2025г., акт 15 e предвиден за 2026г., а непосредствено след това и въвеждането в експлоатация с акт 16 и разрешение за ползване на етап 1.
Строителството на сграда Lion Hill е изцяло обезпечено финансово със собствени средства и банково финансиране от началото на строителството до акт 16, като по този начин изцяло сме премахнали риска за нашите клиенти. Финансовото обезпечаване на проекта ни позволява и да предложим разнообразни схеми на плащане, съобразени с нуждите на всеки клиент.
Срещу допълнително заплащане ще предлагаме на клиентите си и възможност за завършване на апартаментите „до ключ“ по собствен дизайнерски проект.
Архитектурата на сграда Lion Hill е модерна, с изчистени форми и големи прозорци за допускане на максимално количество дневна светлина в жилищните помещения.
Всички апартаменти са с правилни форми и без скосяване, като наличното пространство е използвано максимално ефективно.
Сграда Lion Hill е предвидена да се изпълни с най-висок клас материали, като целта ни е да се откроява с по-високо качество на изпълнение от повечето други сгради в района.
По този начин искаме да осигурим максимален комфорт на собствениците, ниски сметки и дългогодишна безпроблемна експлоатация.
С дългогодишния си опит в строителството и във взаимодействието си с нашите партньори от Юнимекс,
нашият главен изпълнител, сме установили основните проблеми, с които собствениците на нови жилища се сблъскват и знаем как да ги избегнем, като по този начин ви осигурим спокойствие и уют в новия ви дом.
Специално внимание сме отделили на изграждането на шумоизолационни системи по вертикалните и хоризонталните клонове за отводняване и вентилация,
като по този начин осигурим максимален комфорт за Вас и Вашите семейства.
Предвидили сме зидариите да бъдат с най-висококачествени тухли на Wienerberger, а фасадата на сградата да бъде изпълнена с топлоизолация и мазилка на Baumit. Цялостното решение за фасадата на сградата е замислено да предложи топлоизолация и шумоизолация от най-висок клас, както и по-ниски разходи за отопление и охлаждане.
За Вас сме избрали най-висок клас 7-камерна дограма на световния лидер Schüco, сертифицирана по стандартите за пасивни къщи в Германия, с троен стъклопакет и стъкло четири сезона, топъл дистанционер и транспортен профил. Входните врати на апартаментите ще са на лидера в областта Solid 55. Отоплението е предвидено да бъде с климатици, а топлата вода на електрически бойлери. Общите части на сградата ще бъдат изградени по дизайнерски проект. Предвиден е контрол на достъпа до сградата с лицево разпознаване и видеонаблюдение на общите части за максимална сигурност. В двора на сградата ще бъде изградено просторно озеленено пространство за почивка и игри с контролиран достъп само за собствениците.
Екипът, отговорен за проектирането и изпълнението на сграда Lion Hill, е съставен от доказани професионалисти с дългогодишен опит и десетки реализирани жилищни сгради, построени стотици хиляди кв.м. РЗП и множество награди за Сграда на Годината и Фасада на Годината. Както и за останалите проекти на Танит Груп, главен изпълнител на сграда Lion Hill са отново нашите партньори от фирма Юнимекс, главен проектант е арх. Иван Моев и студио Топ Арх, а строителният надзор се извършва от фирма Строителен Стандарт.
Ние вярваме, че кв. Левски Г все повече ще се утвърждава като предпочитано място за живот, благодарение на изградената улична инфраструктура, наличието на детски градини и училища, близостта си до центъра на гр. София и отличната транспортна свързаност.
На пешеходно разстояние от сграда Lion Hill се намират 199 Основно Училище ‘'Св. Апостол Йоан Богослов‘’, две общински детски градини, както и частни детски центрове. На 5 минути пешеходно разстояние се изгражда нов магазин от верига Фантастико, а съществуващият магазин Билла е на около 7 минути пешеходно разстояние.
С автомобил разстоянието от сграда Lion Hill до ЦУМ и Президентството се изминава за около 15мин., благодарение на директната връзка посредством бул. Владимир Вазов. Близостта до Околовръстния път и Северната скоростна тангента (и в частност очакваното започване на строителството на директна връзка към нея) също спомагат за лесния достъп до кв. Левски Г.
През 2025г., по данни на Столична Община, се очаква да бъде готово и разширението на най-модерната трета линия на метрото, чрез което значително ще се улесни и достъпът с градски транспорт до центъра на гр. София. Сграда Lion Hill е на пешеходно разстояние от около 650 м. от третата станция на новостроящия се участък – МС „Генерал Владимир Вазов“. От там за около 10-тина минути ще бъде възможно да се стигне до парка Заимов и Орлов Мост.
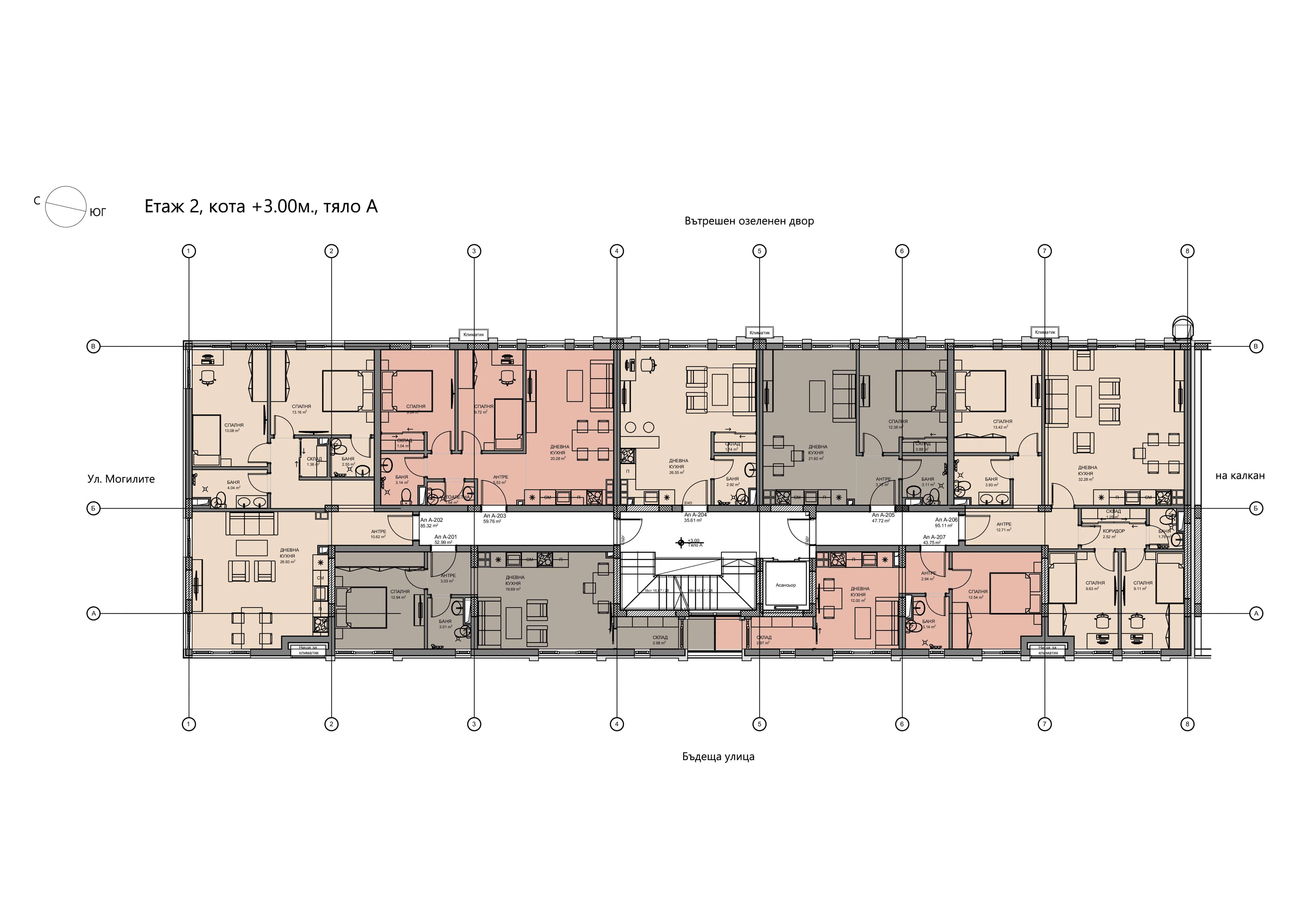
Сграда Lion Hill е проектирана на 7 жилищни етажа, включително наземен етаж с апартаменти с озеленени дворове, и две нива подземно паркиране и складове. В сградата са проектирани 41 апартамента и 1 офис.
По вид, апартаментите са: 5бр. едностайни/студио, 16бр. двустайни, 14бр. тристайни и 6бр. четиристайни. Към всеки апартамент има предвидено паркомясто в подемните гаражи. На калкан от южната страна на сграда Lion Hill етап 1 ще бъде построена и следващата ни сграда – Lion Hill етап 2.
Цени
| Обект | № | Вид | ЗП на обекта БЕЗ общи части |
Тераса/ двор |
Склад |
ЗП с общи ч., склад и тераса |
Цена с вкл. ДДС (€) Вариант 1 Вариант 2 |
Статус | |||||||||||
| Етаж 1, кота 0,00м. | |||||||||||||||||||
| Офис | А1 01 | Офис | Продаден | ||||||||||||||||
| Склад | А0 01 | Склад | Продаден | ||||||||||||||||
| Апартамент | А1 01 | Тристаен | Продаден | ||||||||||||||||
| Апартамент | А1 02 | Четиристаен | 94.86 | 29.01 | 1.9 | 142.00 | 283,000 | 308,000 | Свободен | ||||||||||
| Апартамент | А1 03 | Двустаен | Продаден | ||||||||||||||||
| Етаж 2, кота +3,00м. | |||||||||||||||||||
| Апартамент | А2 01 | Двустаен | Продаден | ||||||||||||||||
| Апартамент | А2 02 | Тристаен | 85.32 | 2.27 | 104.44 | 212,000 | 230,000 | Свободен | |||||||||||
| Апартамент | А2 03 | Тристаен | Продаден | ||||||||||||||||
| Апартамент | А2 04 | Студио | Продаден | ||||||||||||||||
| Апартамент | А2 05 | Двустаен | Продаден | ||||||||||||||||
| Апартамент | А2 06 | Четиристаен | Продаден | ||||||||||||||||
| Апартамент | А2 07 | Двустаен | Продаден | ||||||||||||||||
| Етаж 3, кота +6,00м. | |||||||||||||||||||
| Апартамент | А3 01 | Двустаен | Продаден | ||||||||||||||||
| Апартамент | А3 02 | Тристаен | Продаден | ||||||||||||||||
| Апартамент | А3 03 | Тристаен | Продаден | ||||||||||||||||
| Апартамент | А3 04 | Студио | Продаден | ||||||||||||||||
| Апартамент | А3 05 | Тристаен | Продаден | ||||||||||||||||
| Апартамент | А3 06 | Тристаен | Продаден | ||||||||||||||||
| Апартамент | А3 07 | Двустаен | Продаден | ||||||||||||||||
| Етаж 4, кота +9,00м. | |||||||||||||||||||
| Апартамент | А4 01 | Двустаен | Продаден | ||||||||||||||||
| Апартамент | А4 02 | Тристаен | Продаден | ||||||||||||||||
| Апартамент | А4 03 | Тристаен | Продаден | ||||||||||||||||
| Апартамент | А4 04 | Студио | Продаден | ||||||||||||||||
| Апартамент | А4 05 | Двустаен | Продаден | ||||||||||||||||
| Апартамент | А4 06 | Четиристаен | Продаден | ||||||||||||||||
| Апартамент | А4 07 | Двустаен | Продаден | ||||||||||||||||
| Етаж 5, кота +12,00м. | |||||||||||||||||||
| Апартамент | А5 01 | Двустаен | Продаден | ||||||||||||||||
| Апартамент | А5 02 | Тристаен | Продаден | ||||||||||||||||
| Апартамент | А5 03 | Тристаен | Продаден | ||||||||||||||||
| Апартамент | А5 04 | Студио | Продаден | ||||||||||||||||
| Апартамент | А5 05 | Двустаен | Продаден | ||||||||||||||||
| Апартамент | А5 06 | Четиристаен | Продаден | ||||||||||||||||
| Апартамент | А5 07 | Двустаен | Продаден | ||||||||||||||||
| Етаж 6, кота +15,00м. | |||||||||||||||||||
| Апартамент | А6 01 | Двустаен | Продаден | ||||||||||||||||
| Апартамент | А6 02 | Тристаен | 88.32 | 2.29 | 108.05 | 231,000 | 250,000 | Свободен | |||||||||||
| Апартамент | А6 03 | Тристаен | Продаден | ||||||||||||||||
| Апартамент | А6 04 | Студио | Продаден | ||||||||||||||||
| Апартамент | А6 05 | Двустаен | Продаден | ||||||||||||||||
| Апартамент | А6 06 | Четиристаен | Продаден | ||||||||||||||||
| Апартамент | А6 07 | Двустаен | Продаден | ||||||||||||||||
| Етаж 7, кота +18,00м. | |||||||||||||||||||
| Апартамент | А7 01 | Тристаен | Продаден | ||||||||||||||||
| Апартамент | А7 02 | Двустаен | Продаден | ||||||||||||||||
| Апартамент | А7 03 | Четиристаен | Продаден | ||||||||||||||||
| Паркоместа етаж -1 | |||||||||||||||||||
| Паркомясто | АС1 01 | Гараж АС1 01 | Продаден | ||||||||||||||||
| Паркомясто | АС1 02 | Гараж АС1 01 | Продаден | ||||||||||||||||
| Паркомясто | АС1 03 | Гараж АС1 02 | Продаден | ||||||||||||||||
| Паркомясто | АС1 04 | Гараж АС1 02 | Продаден | ||||||||||||||||
| Паркомясто | АС1 05 | Паркомясто | Продаден | ||||||||||||||||
| Паркомясто | АС1 06 | Паркомясто | Продаден | ||||||||||||||||
| Паркомясто | АС1 07 | Паркомясто | Продаден | ||||||||||||||||
| Паркомясто | АС1 08 | Паркомясто | Продаден | ||||||||||||||||
| Паркомясто | АС1 09 | Паркомясто | 29,000 | 32,000 | Свободен | ||||||||||||||
| Паркомясто | АС1 10 | Паркомясто | Продаден | ||||||||||||||||
| Паркомясто | АС1 11 | Паркомясто | Продаден | ||||||||||||||||
| Паркомясто | АС1 12 | Паркомясто | Продаден | ||||||||||||||||
| Паркомясто | АС1 13 | Паркомясто | Продаден | ||||||||||||||||
| Паркомясто със склад |
АС1 14 | Паркомясто | Продаден | ||||||||||||||||
| Паркомясто със склад |
АС1 15 | Паркомясто | Продаден | ||||||||||||||||
| Паркомясто със склад |
АС1 16 | Гараж АС1 03 | Продаден | ||||||||||||||||
| Паркомясто със склад |
АС1 17 | Гараж АС1 03 | Продаден | ||||||||||||||||
| Паркомясто със склад |
АС1 18 | Паркомясто | 29,000 | 32,000 | Свободен | ||||||||||||||
| Паркомясто със склад |
АС1 19 | Паркомясто | 29,000 | 32,000 | Свободен | ||||||||||||||
| Паркомясто | АС1 20 | Гараж АС1 04 | Продаден | ||||||||||||||||
| Паркомясто | АС1 21 | Гараж АС1 04 | Продаден | ||||||||||||||||
| Паркомясто | АС1 22 | Гараж АС1 05 | Продаден | ||||||||||||||||
| Паркомясто | АС1 23 | Гараж АС1 05 | Продаден | ||||||||||||||||
| Паркомясто | АС1 24 | Гараж АС1 06 | Продаден | ||||||||||||||||
| Паркоместа етаж -2 | |||||||||||||||||||
| Паркомясто | АС2 01 | Паркомясто | Продаден | ||||||||||||||||
| Паркомясто | АС2 02 | Паркомясто | Продаден | ||||||||||||||||
| Паркомясто | АС2 03 | Паркомясто | Продаден | ||||||||||||||||
| Паркомясто | АС2 04 | Паркомясто | 29,000 | 32,000 | Свободен | ||||||||||||||
| Паркомясто | АС2 05 | Паркомясто | 29,000 | 32,000 | Свободен | ||||||||||||||
| Паркомясто | АС2 06 | Паркомясто | Продаден | ||||||||||||||||
| Паркомясто | АС2 07 | Инвалидно | 29,000 | 32,000 | Свободен | ||||||||||||||
| Паркомясто | АС2 08 | Инвалидно | 29,000 | 32,000 | Свободен | ||||||||||||||
| Паркомясто | АС2 09 | Паркомясто | 29,000 | 32,000 | Свободен | ||||||||||||||
| Паркомясто | АС2 10 | Паркомясто | 29,000 | 32,000 | Свободен | ||||||||||||||
| Паркомясто | АС2 11 | Паркомясто | 29,000 | 32,000 | Свободен | ||||||||||||||
| Паркомясто | АС2 12 | Паркомясто | 29,000 | 32,000 | Свободен | ||||||||||||||
| Паркомясто | АС2 13 | Паркомясто | Продаден | ||||||||||||||||
| Паркомясто със склад |
АС2 14 | Паркомясто | 33,000 | 36,000 | Свободен | ||||||||||||||
| Паркомясто със склад |
АС2 15 | Паркомясто | 33,000 | 36,000 | Свободен | ||||||||||||||
| Паркомясто със склад |
АС2 16 | Паркомясто | 33,000 | 36,000 | Свободен | ||||||||||||||
| Паркомясто със склад |
АС2 17 | Паркомясто | 33,000 | 36,000 | Свободен | ||||||||||||||
| Паркомясто със склад |
АС2 18 | Паркомясто | 29,000 | 32,000 | Свободен | ||||||||||||||
| Паркомясто със склад |
АС2 19 | Паркомясто | 29,000 | 32,000 | Свободен | ||||||||||||||
| Паркомясто | АС2 20 | Паркомясто | 29,000 | 32,000 | Свободен | ||||||||||||||
| Паркомясто | АС2 21 | Паркомясто | 29,000 | 32,000 | Свободен | ||||||||||||||
| Паркомясто | АС2 22 | Паркомясто | 29,000 | 32,000 | Свободен | ||||||||||||||
| Паркомясто | АС2 23 | Паркомясто | Продаден | ||||||||||||||||
| Паркомясто | АС2 24 | Гараж АС2 01 | Продаден | ||||||||||||||||
| Вариант 1: 80% плащане при подписване на предварителен договор, 10% на акт 15, 10% на акт 16; | |||||||||||||||||||
| Вариант 2: 20% при подписване на предварителен договор, 80% на акт 16; | |||||||||||||||||||
Апартаменти
В тази секция можете да разгледате сградата по етажи като кликнете върху избрания етаж на визуализацията по-долу. Ще се отвори планът на съответния етаж, върху който можете да кликнете на избрания от Вас апартамент, за да видите детайлно разпределението му.
Локация
Точната локация на сграда Lion Hill е показана на картата по-долу:








