За проекта
Втората сграда (етап 2) на нашия проект Lion Hill е разположена „на калкан“ до първата сграда
(етап 1) на адрес гр. София, кв. Левски Г, ул. Могилите №7.
Изграждането на етап 2 от нашия проект Lion Hill стартира м. юли 2025г., акт 14 е предвиден за
втората половина на 2026г., акт 15 е предвиден за 2027г., а акт 16 и въвеждането в експлоатация с
разрешение за ползване - за 2028г.
Както и етап 1, строителството на етап 2 от нашия проект Lion Hill е изцяло обезпечено финансово
със собствени средства и банково финансиране от началото на строителството до акт 16, като по
този начин изцяло сме премахнали риска за нашите клиенти. Финансовото обезпечаване на
проекта ни позволява и да предложим разнообразни схеми на плащане, съобразени с нуждите на
всеки клиент.
Срещу допълнително заплащане ще предлагаме и възможност за завършване на апартаментите
„до ключ“ по дизайнерски проект.
Архитектурата на проекта Lion Hill е модерна, с изчистени форми и големи прозорци за допускане
на максимално количество дневна светлина в жилищните помещения. Всички апартаменти са с
правилни форми и без скосявания, като наличното пространство е използвано максимално
ефективно.
Сграда Lion Hill е предвидена да се изпълни с най-висок клас материали, като целта ни е да се
откроява с по-високо качество на изпълнение от повечето други сгради, които се строят в района,
така че да осигури максимален комфорт на собствениците, ниски сметки и дългогодишна
безпроблемна експлоатация.
Предвидили сме зидариите да бъдат с висококачествени тухли на Wienerberger, топлоизолация и
мазилка на Baumit, най-висок клас 7-камерна дограма Schüco с троен стъклопакет и стъкло четири
сезона, топъл дистанционер и транспортен профил, сертифицирана по стандартите за пасивни
къщи в Германия, входни врати на апартаментите на Solid 55. Отоплението е предвидено да бъде с
климатици, а топлата вода на електрически бойлери. Общите части на сградата ще бъдат
изградени по дизайнерски проект. Предвиден е контрол на достъпа до сградата с лицево
разпознаване и видеонаблюдение на общите части за максимална сигурност.
Екипът, отговорен за проектирането и изпълнението на проекта Lion Hill, е съставен от доказани
професионалисти с дългогодишен опит и десетки реализирани жилищни сгради, построени
стотици хиляди кв.м. РЗП и множество награди за Сграда на Годината и Фасада на Годината. Както
и за останалите проекти на Танит Груп, главен изпълнител на Lion Hill са отново нашите партньори
от фирма Юнимекс, главен проектант е арх. Иван Моев и студио Топ Арх, а строителният надзор се
извършва от фирма Строителен Стандарт.
Ние вярваме, че кв. Левски Г все повече ще се утвърждава като предпочитано място за живот,
благодарение на изградената улична инфраструктура, наличието на детски градини и училища,
близостта си до центъра на гр. София и отличната транспортна свързаност.
С автомобил разстоянието от сграда Lion Hill 1 до ЦУМ и Президентството се изминава за около
15мин., благодарение на директната връзка посредством бул. Владимир Вазов.
През 2026г., по данни на Столична Община, се очаква да бъде готово и разширението на най-
модерната трета линия на метрото, чрез което значително ще се улесни и достъпът с градски
транспорт до центъра на гр. София. Етап 2, както и етап 1 на проекта ни Lion Hill, е на пешеходно
разстояние от около 650м. от третата станция на новостроящия се участък – МС „Генерал
Владимир Вазов“. От там за около 10-тина минути ще бъде възможно да се стигне до парка Заимов
и Орлов Мост.
Етап 2 на Lion Hill е проектирана на 7 жилищни етажа, включително наземен етаж с апартаменти с
озеленени дворове, и две нива подземно паркиране и складове. В сградата са проектирани 49
апартамента. По вид, апартаментите са 11бр. едностайни/студио, 26бр. двустайни, 8бр. тристайни
и 4бр. четиристайни. Към всеки апартамент има предвидено паркомясто в подемните гаражи.
Цени
| Обект | № | Вид | ЗП на обекта БЕЗ общи части |
Тераса/ двор |
Склад |
ЗП с общи ч., склад и тераса |
Цена с вкл. ДДС (€) Вариант 1 Вариант 2 Вариант 3 |
Статус | |||||||||||
| Етаж 1, кота 0,00м. | |||||||||||||||||||
| Апартамент | Б1 01 | Двустаен | 58.23 | 20.14 | 88.63 | 165,000 | 174,000 | 182,000 | Свободен | ||||||||||
| Апартамент | Б1 02 | Тристаен | 75.16 | 24.37 | 2.72 | 115.63 | 212,000 | 223,000 | 234,000 | Свободен | |||||||||
| Апартамент | Б1 03 | Тристаен | 71.22 | 21.45 | 2.72 | 107.69 | 201,000 | 211,000 | 222,000 | Свободен | |||||||||
| Апартамент | Б1 04 | Тристаен | 71.22 | 21.45 | 2.72 | 107.69 | 201,000 | 211,000 | 222,000 | Свободен | |||||||||
| Апартамент | Б1 05 | Двустаен | 47.03 | 16.48 | 71.97 | 139,000 | 146,000 | 153,500 | Свободен | ||||||||||
| Апартамент | Б1 06 | Тристаен | 66.21 | 26.14 | 2.14 | 106.63 | 201,000 | 211,000 | 222,000 | Свободен | |||||||||
| Апартамент | Б1 07 | Едностаен | 24.47 | 19.94 | 48.77 | 92,000 | 97,000 | 101,500 | Свободен | ||||||||||
| Етаж 2, кота +3,00м. | |||||||||||||||||||
| Апартамент | Б2 01 | Двустаен | Продаден | ||||||||||||||||
| Апартамент | Б2 02 | Тристаен | 70.21 | 2.66 | 87.15 | 183,000 | 192,500 | 202,000 | Свободен | ||||||||||
| Апартамент | Б2 03 | Едностаен | Продаден | ||||||||||||||||
| Апартамент | Б2 04 | Едностаен | Продаден | ||||||||||||||||
| Апартамент | Б2 05 | Едностаен | Продаден | ||||||||||||||||
| Апартамент | Б2 06 | Едностаен | Продаден | ||||||||||||||||
| Апартамент | Б2 07 | Едностаен | Продаден | ||||||||||||||||
| Апартамент | Б2 08 | Двустаен | 50.91 | 28,74 | 90,00 | 158,000 | 166,000 | 174,500 | Свободен | ||||||||||
| Апартамент | Б2 09 | Двустаен | 53.88 | 2.57 | 67.63 | 145,000 | 152,500 | 160,000 | Свободен | ||||||||||
| Апартамент | Б2 10 | Двустаен | 52.99 | 63.87 | 138,000 | 145,000 | 152,500 | Свободен | |||||||||||
| Етаж 3, кота +6,00м. | |||||||||||||||||||
| Апартамент | Б3 01 | Двустаен | Продаден | ||||||||||||||||
| Апартамент | Б3 02 | Тристаен | Продаден | ||||||||||||||||
| Апартамент | Б3 03 | Едностаен | Продаден | ||||||||||||||||
| Апартамент | Б3 04 | Едностаен | Продаден | ||||||||||||||||
| Апартамент | Б3 05 | Едностаен | Продаден | ||||||||||||||||
| Апартамент | Б3 06 | Едностаен | Продаден | ||||||||||||||||
| Апартамент | Б3 07 | Едностаен | Продаден | ||||||||||||||||
| Апартамент | Б3 08 | Двустаен | Продаден | ||||||||||||||||
| Апартамент | Б3 09 | Двустаен | 53.88 | 2.92 | 68.0 | 149,000 | 156,500 | 164,500 | Свободен | ||||||||||
| Апартамент | Б3 10 | Двустаен | 52.99 | 2.88 | 66.8 | 147,000 | 154,500 | 162,500 | Свободен | ||||||||||
| Етаж 4, кота +9,00м. | |||||||||||||||||||
| Апартамент | Б4 01 | Двустаен | Продаден | ||||||||||||||||
| Апартамент | Б4 02 | Четиристаен | 85.64 | 29.22 | 2.94 | 135.05 | 264,000 | 277,500 | 291,500 | Свободен | |||||||||
| Апартамент | Б4 03 | Двустаен | 42.08 | 36.07 | 2.75 | 89.20 | 155,000 | 163,000 | 171,000 | Свободен | |||||||||
| Апартамент | Б4 04 | Двустаен | 47.85 | 30.32 | 2.66 | 90.27 | 159,000 | 167,000 | 175,500 | Свободен | |||||||||
| Апартамент | Б4 05 | Двустаен | 47.53 | 5.55 | 2.02 | 64.77 | 144,000 | 151,500 | 159,000 | Свободен | |||||||||
| Апартамент | Б4 06 | Двустаен | Продаден | ||||||||||||||||
| Апартамент | Б4 07 | Двустаен | 52.99 | 2.05 | 65.92 | 149,000 | 156,500 | 164,500 | Свободен | ||||||||||
| Етаж 5, кота +12,00м. | |||||||||||||||||||
| Апартамент | Б5 01 | Двустаен | Продаден | ||||||||||||||||
| Апартамент | Б5 02 | Четиристаен | Продаден | ||||||||||||||||
| Апартамент | Б5 03 | Двустаен | Продаден | ||||||||||||||||
| Апартамент | Б5 04 | Двустаен | Продаден | ||||||||||||||||
| Апартамент | Б5 05 | Двустаен | Продаден | ||||||||||||||||
| Апартамент | Б5 06 | Двустаен | Продаден | ||||||||||||||||
| Апартамент | Б5 07 | Двустаен | 52.99 | 1.99 | 65.9 | 151,000 | 159,000 | 166,500 | Свободен | ||||||||||
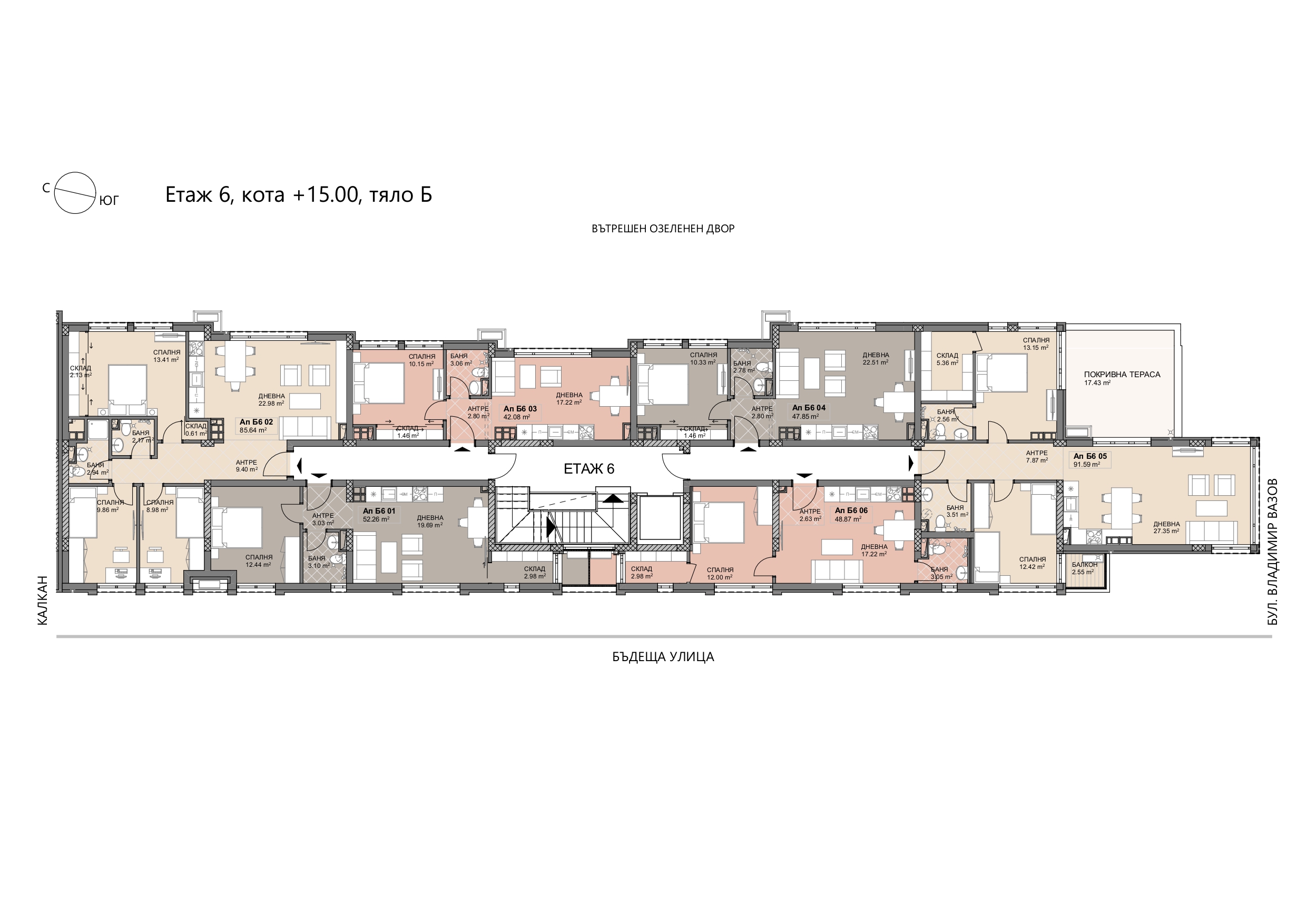
| Етаж 6, кота +15,00м. | |||||||||||||||||||
| Апартамент | Б6 01 | Двустаен | Продаден | ||||||||||||||||
| Апартамент | Б6 02 | Четиристаен | 85.64 | 2.66 | 105.55 | 242,000 | 254,500 | 267,000 | Свободен | ||||||||||
| Апартамент | Б6 03 | Двустаен | 42.08 | 2.60 | 52.98 | 127,000 | 133,500 | 140,500 | Свободен | ||||||||||
| Апартамент | Б6 04 | Двустаен | 47.85 | 2.65 | 59.94 | 137,000 | 144,000 | 151,500 | Свободен | ||||||||||
| Апартамент | Б6 05 | Тристаен | 91.59 | 17.43 | 2.72 | 130.74 | 269,000 | 283,000 | 297,000 | Свободен | |||||||||
| Апартамент | Б6 06 | Двустаен | 48.87 | 2.72 | 61.63 | 141,000 | 148,500 | 155,500 | Свободен | ||||||||||
| Етаж 7, кота +18,00м. | |||||||||||||||||||
| Апартамент | Б7 01 | Тристаен | Продаден | ||||||||||||||||
| Апартамент | Б7 02 | Четиристаен | 145.33 | 64.10 | 2.72 | 240.5 | 465,000 | 489,000 | 513,000 | Свободен | |||||||||
| Паркоместа етаж -1 | |||||||||||||||||||
| Паркомясто | БС1 01 | Паркомясто | Продаден | ||||||||||||||||
| Паркомясто | БС1 02 | Паркомясто | Продаден | ||||||||||||||||
| Паркомясто | БС1 03 | Паркомясто | Продаден | ||||||||||||||||
| Паркомясто | БС1 04 | Паркомясто | 29,000 | 30,500 | 32,000 | Свободен | |||||||||||||
| Паркомясто | БС1 05 | Паркомясто | 29,000 | 30,500 | 32,000 | Свободен | |||||||||||||
| Паркомясто | БС1 06 | Паркомясто | 29,000 | 30,500 | 32,000 | Свободен | |||||||||||||
| Паркомясто | БС1 07 | Паркомясто | 29,000 | 30,500 | 32,000 | Свободен | |||||||||||||
| Паркомясто | БС1 08 | Паркомясто | 29,000 | 30,500 | 32,000 | Свободен | |||||||||||||
| Паркомясто | БС1 09 | Паркомясто | Продаден | ||||||||||||||||
| Паркомясто | БС1 10 | Паркомясто | Продаден | ||||||||||||||||
| Паркомясто | БС1 11 | Паркомясто | Продаден | ||||||||||||||||
| Паркомясто | БС1 12 | Паркомясто | Продаден | ||||||||||||||||
| Паркомясто | БС1 13 | Паркомясто | Продаден | ||||||||||||||||
| Паркомясто | БС1 14 | Паркомясто | Продаден | ||||||||||||||||
| Паркомясто | БС1 15 | Паркомясто | 29,000 | 30,500 | 32,000 | Свободен | |||||||||||||
| Паркомясто | БС1 16 | Паркомясто | 29,000 | 30,500 | 32,000 | Свободен | |||||||||||||
| Паркомясто | БС1 17 | Паркомясто | 29,000 | 30,500 | 32,000 | Свободен | |||||||||||||
| Паркомясто | БС1 18 | Паркомясто | 29,000 | 30,500 | 32,000 | Свободен | |||||||||||||
| Паркомясто | БС1 19 | Паркомясто | Продаден | ||||||||||||||||
| Паркомясто | БС1 20 | Паркомясто | 29,000 | 30,500 | 32,000 | Свободен | |||||||||||||
| Паркомясто | БС1 21 | Паркомясто | 29,000 | 30,500 | 32,000 | Свободен | |||||||||||||
| Паркомясто | БС1 22 | Паркомясто | 33,000 | 35,000 | 38,000 | Свободен | |||||||||||||
| Паркомясто | БС1 23 | Паркомясто | 29,000 | 30,500 | 32,000 | Свободен | |||||||||||||
| Паркомясто | БС1 24 | Паркомясто | 29,000 | 30,500 | 32,000 | Свободен | |||||||||||||
| Паркомясто | БС1 25 | Гараж БС1 01 | Продаден | ||||||||||||||||
| Паркоместа етаж -2 | |||||||||||||||||||
| Паркомясто | БС2 01 | Паркомясто | Продаден | ||||||||||||||||
| Паркомясто | БС2 02 | Паркомясто | Продаден | ||||||||||||||||
| Паркомясто | БС2 03 | Паркомясто | Продаден | ||||||||||||||||
| Паркомясто | БС2 04 | Паркомясто | Продаден | ||||||||||||||||
| Паркомясто | БС2 05 | Паркомясто | 29,000 | 30,500 | 32,000 | Свободен | |||||||||||||
| Паркомясто | БС2 06 | Паркомясто | 29,000 | 30,500 | 32,000 | Свободен | |||||||||||||
| Паркомясто | БС2 07 | Паркомясто | 29,000 | 30,500 | 32,000 | Свободен | |||||||||||||
| Паркомясто | БС2 08 | Паркомясто | 29,000 | 30,500 | 32,000 | Свободен | |||||||||||||
| Паркомясто | БС2 09 | Паркомясто | 29,000 | 30,500 | 32,000 | Свободен | |||||||||||||
| Паркомясто | БС2 10 | Паркомясто | 29,000 | 30,500 | 32,000 | Свободен | |||||||||||||
| Паркомясто | БС2 11 | Паркомясто | 29,000 | 30,500 | 32,000 | Свободен | |||||||||||||
| Паркомясто | БС2 12 | Паркомясто | 29,000 | 30,500 | 32,000 | Свободен | |||||||||||||
| Паркомясто | БС2 13 | Паркомясто | 29,000 | 30,500 | 32,000 | Свободен | |||||||||||||
| Паркомясто | БС2 14 | Паркомясто | 29,000 | 30,500 | 32,000 | Свободен | |||||||||||||
| Паркомясто | БС2 15 | Паркомясто | 29,000 | 30,500 | 32,000 | Свободен | |||||||||||||
| Паркомясто | БС2 16 | Паркомясто | 29,000 | 30,500 | 32,000 | Свободен | |||||||||||||
| Паркомясто | БС2 17 | Паркомясто | 29,000 | 30,500 | 32,000 | Свободен | |||||||||||||
| Паркомясто | БС2 18 | Паркомясто | 29,000 | 30,500 | 32,000 | Свободен | |||||||||||||
| Паркомясто със склад |
БС2 19 | Паркомясто | 4.44 | 33,000 | 35,000 | 38,000 | Свободен | ||||||||||||
| Паркомясто | БС2 20 | Паркомясто | 29,000 | 30,500 | 32,000 | Свободен | |||||||||||||
| Паркомясто | БС2 21 | Паркомясто | 29,000 | 30,500 | 32,000 | Свободен | |||||||||||||
| Паркомясто | БС2 22 | Паркомясто | 29,000 | 30,500 | 32,000 | Свободен | |||||||||||||
| Паркомясто | БС2 23 | Паркомясто | Продаден | ||||||||||||||||
| Паркомясто | БС2 24 | Паркомясто | Продаден | ||||||||||||||||
| Паркомясто | БС2 25 | Гараж БС2 01 | Продаден | ||||||||||||||||
| Вариант 1: 80% плащане при подписване на предварителен договор, 10% на акт 15, 10% наакт 16; | |||||||||||||||||||
| Вариант 2: 40% при подписване на предварителен договор, 40% на акт 14, 10% на акт 15,10% на акт 16; | |||||||||||||||||||
| Вариант 3: 20% при подписване на предварителен договор, 80% на акт 16; | |||||||||||||||||||
Локация
Точната локация на сграда Lion Hill е показана на картата по-долу:








